3 locali in vendita a Carugate

1 / 3
Foto annuncio
Foto annuncio
300.000 €
112 m²
Superficie
3
Locali
2
Bagni
1
Box
in vendita
3 locali
Carugate
Descrizione
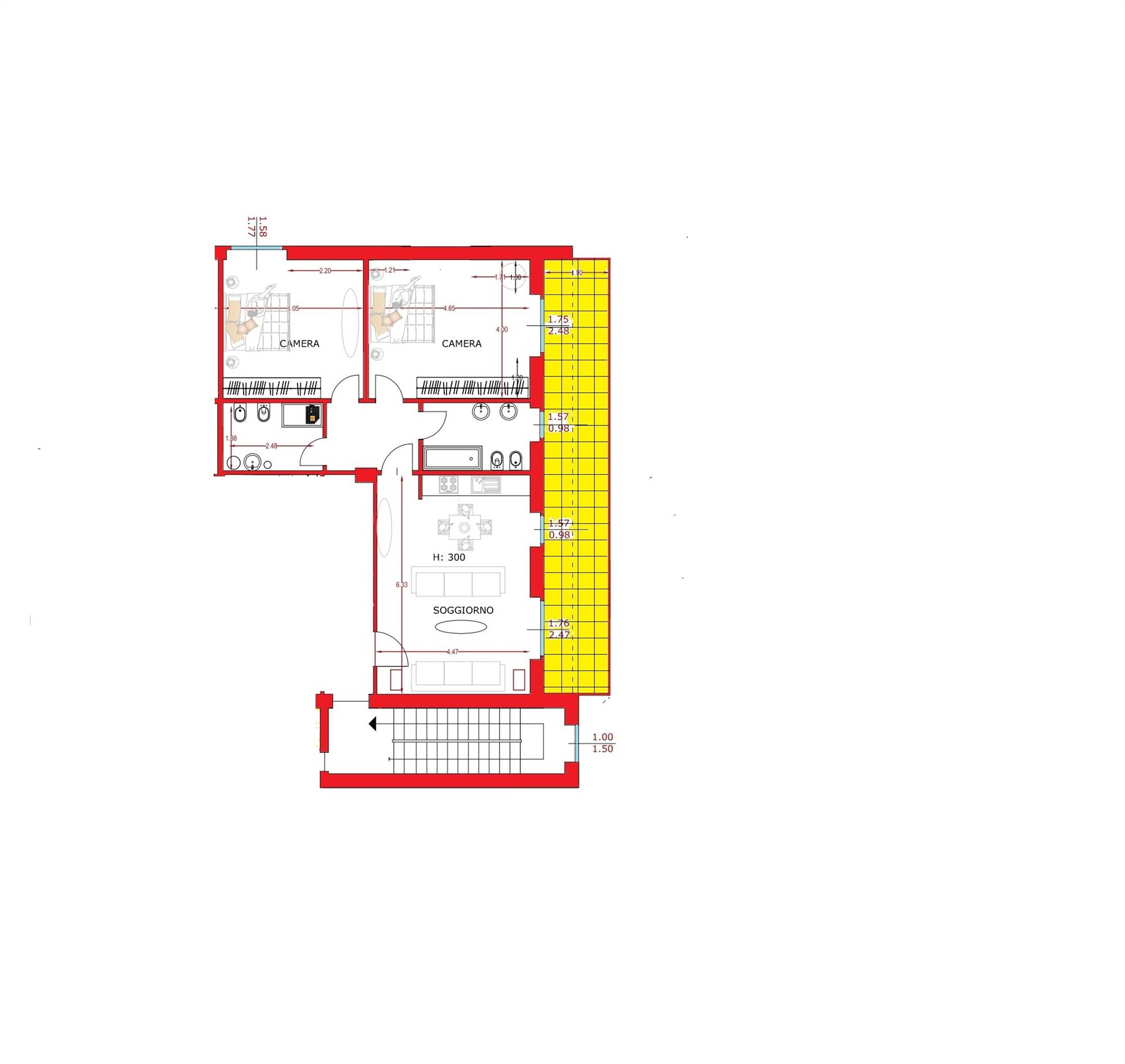
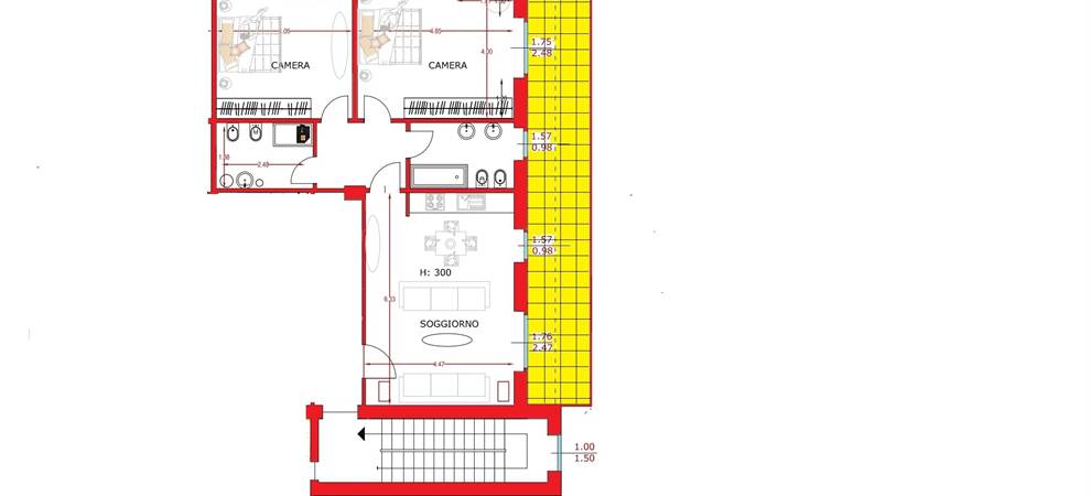
NUOVA RISTRUTTURAZIONE APPARTAMENTO DI TRE LOCALI di 112 mq situato a due passi dal centro e da numerosi servizi quali scuole, asili, negozi, posta e mezzi di trasporto pubblici, composto da ingresso, ampio soggiorno con angolo cottura e un bel terrazzo, due ampie camere matrimoniali e doppi servizi, vano corridoio comune con altro appartamento. Consegna luglio 2026 . Scelta capitolato. Per maggiori informazioni contattateci per un appuntamento in ufficio dove abbiamo a disposizione capitolato, planimetrie e per effettuare un sopralluogo in cantiere. Anna Cristiano 3474350851
Caratteristiche principali
Codice:
NUOVA RISTRUTTURAZIONE 2
Città:
Carugate
Categoria:
3 locali
Locali:
3
Bagni:
2
Mq:
112
Box:
1
Terrazzi:
1
Piano:
1
Anno:
2026
Classe energetica:
In fase di valutazione
Stato Immobile:
Nuovo
Grado:
Signorile
Posizione:
Centro
Orientamento:
Nord Ovest
Lati Liberi:
2
Tipo Soggiorno:
Soggiorno
Tipo Cucina:
Angolo Cottura
Riscaldamento:
Autonomo
Tipo Riscaldam.:
Caldaia a Condensazione
Tipo Impianto:
Pavimento
Fonte Energetica:
Metano
Acqua Calda:
Autonoma
Raffrescamento:
Predisposizione
Infissi:
PVC Doppio Vetro
Serramenti:
Nuovo
Accessori
Doppi Vetri
Porta Blindata
Mappa
VIA MONTEGRAPPA, 34 - Carugate (MI)
Cookie preference