Appartamento in Vendita a Carugate (MI) VIA MONTEGRAPPA 34

265.000 €
103 m²
Superficie
3
Locali
2
Bagni
in vendita
appartamento
Carugate
Descrizione
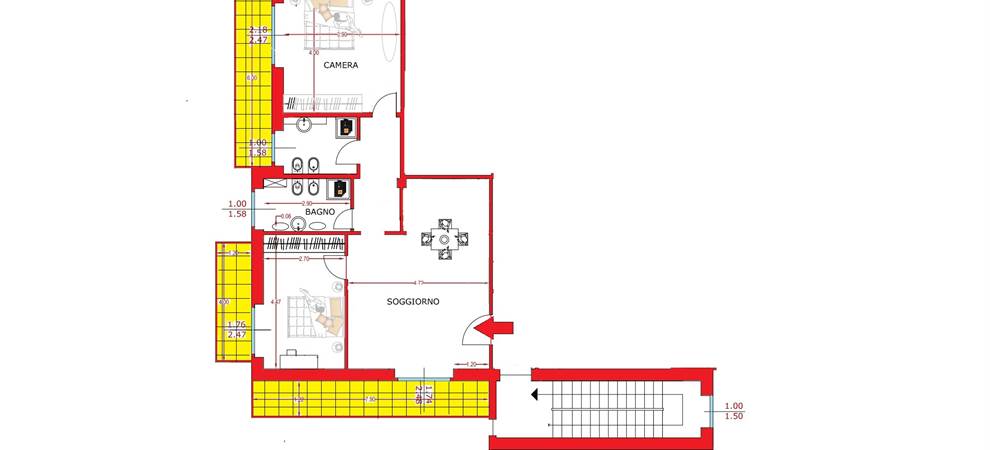
NUOVA RISTRUTTURAZIONE APPARTAMENTO DI TRE LOCALI di 103 mq situato a due passi dal centro e da numerosi servizi quali scuole, asili, negozi, posta e mezzi di trasporto pubblici, dotato di ascensore che arriva fino al piano boxes composto da ingresso, soggiorno con angolo cottura, due camere tre balconi e doppi servizi finestrati. Possibilità Box. Consegna luglio 2026 Per maggiori informazioni contattateci per un appuntamento in ufficio dove abbiamo a disposizione capitolato, planimetrie e per effettuare un sopralluogo in cantiere. Anna Cristiano 3474350851
Caratteristiche principali
Codice:
NUOVA RISTRUTTURAZIONE
Città:
Carugate
Categoria:
Appartamento
Locali:
3
Bagni:
2
Mq:
103
Balconi:
3
Piano:
1
Anno ristrutturazione:
2026
Classe energetica:
In fase di valutazione
Stato Immobile:
Prossima Realizzazione
Grado:
Medio
Posizione:
Centro
Orientamento:
Nord Ovest Sud Est
Lati Liberi:
3
Tipo Soggiorno:
Sala da Pranzo
Tipo Cucina:
Cucinotto
Riscaldamento:
Autonomo
Tipo Riscaldam.:
Caldaia a Condensazione
Tipo Impianto:
Pavimento
Fonte Energetica:
Metano
Acqua Calda:
Autonoma
Raffrescamento:
Predisposizione
Infissi:
PVC Doppio Vetro
Serramenti:
Nuovo
Accessori
Ascensore
Doppi Vetri
Porta Blindata
Tapparelle Elettriche
Video Citofono
Mappa
VIA MONTEGRAPPA, 34 - Carugate (MI)
Distanze
Posizione
Centro150 m
Istruzione
Scuola materna20 m
Scuola elementare100 m
Scuola media200 m
Mezzi di trasporto
Fermata metro-bus-tram150 m
Altri servizi
Supermercato100 m
Cookie preference